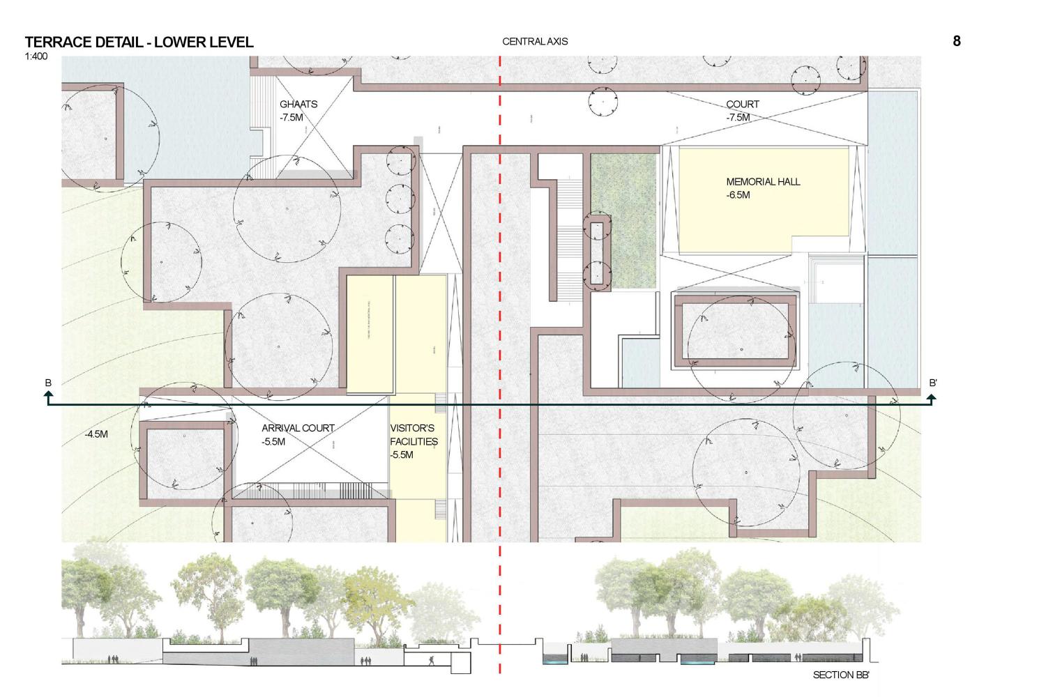
Our proposed site falls along the axis that leads to the garden behind the president’s house in one end and the Yamuna on the other. We propose to compress this axis by bringing the gardens and the river together, to generate a new kind of space through the confluence of these two conditions, intermingling the reflective and ritualistic functions for evoking the memory of our fallen heroes, past and future. Merging the two conditions of gardens and rivers results in a series of cascading terraces, which is achieved by sloping the larger grounds in the general direction of the river. The resultant required retaining walls provide the necessary condition of the garden to exist.
Through the sequencing of these spaces, there are three kinds of users that are primarily identified
First, people who are using the meandering paths of the water terraces to reach the memorial hall for specific rituals and associated activities
Second, people who are approaching from the museum. A more direct approach to the flower terraces, ending at a court before entering the covered facilities. This direct connection begins as a tunnel from the museum emerging out of the ground as a bridge and meeting the vistas facility court through a passage.
Lastly, the third kind of user we’ve identified are the large number of people coming to the India gate arch for recreational purpose












