Yamaju









Project info
Location: Lake Towada, JAPAN
Area: 1,300 sq. ft
Program: Mixed Use
Status: Completed, 2019
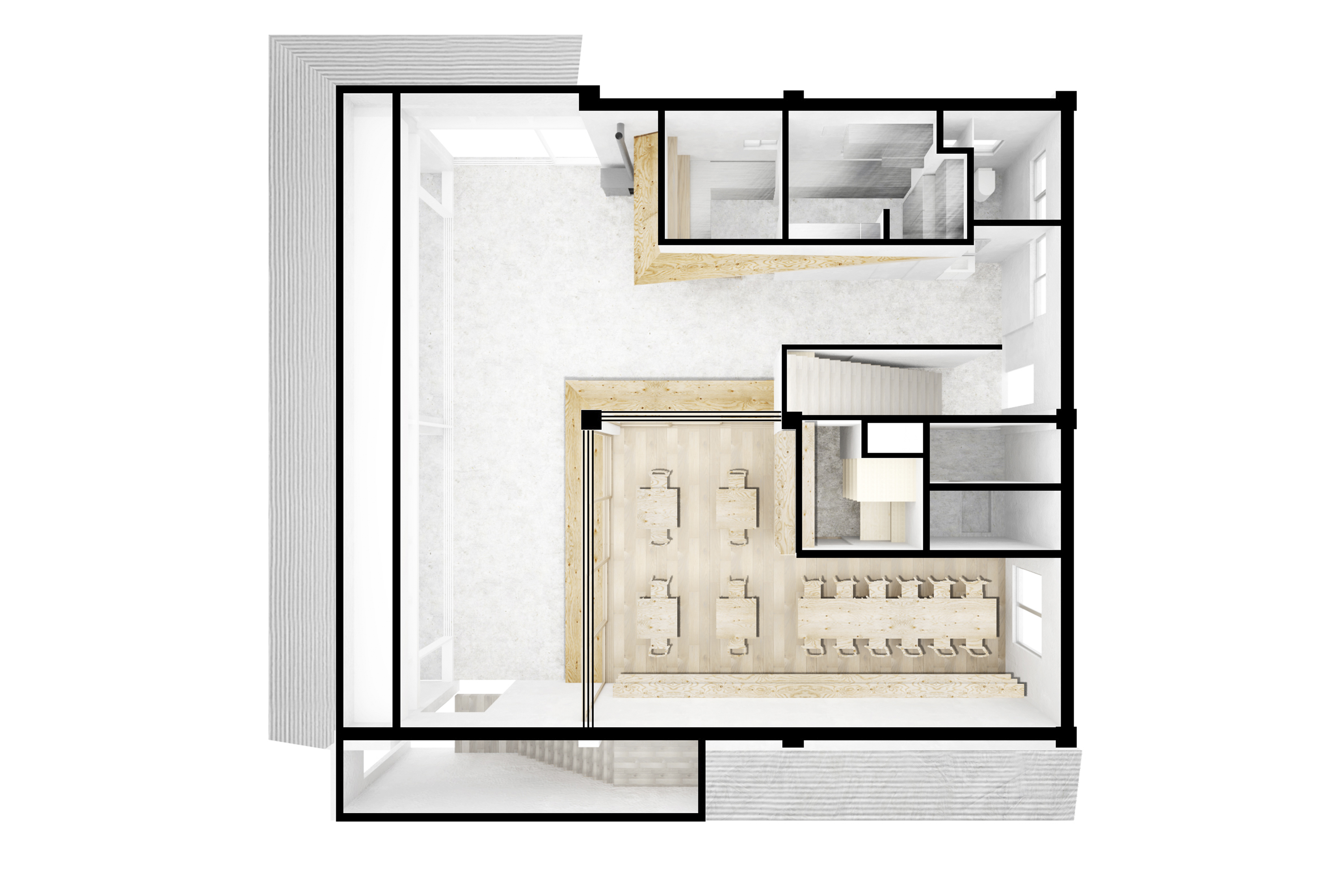
The site is located in the center of the town, facing the main street along the shore of Lake Towada. In the town, an increase of empty houses due to depopulation has been treated as a serious problem. Taking this situation into account, we proposed a framework where sustainable buildings are to be converted into new programs while overall numbers are to be demolished. We believe this project shows a new prototype that can suggest strategies facing shrinking society.
One of the expectations was to create a space that can accommodate flexible and varied usages, particularly functioning as a co-working office and exhibition space during week days as well as café and event space during weekends. In so doing, we generated a large studio space by dismantling the partition walls of the existing building. Our objective was to give a birth to a space that can invigorate users’ creativities through a synergistic effect, which is based upon a seamless connection among the three programs: café, co-working office, and event/exhibition.
We designed an open semi-outdoor space (doma, 土間) that faces the main street. It aims to be used for social activities, such as diverse events and exhibitions. Facing doma, we designed an area for café and office. In order to maintain connectivity between these two spaces, we inserted two L-shaped elements: between the office and event spaces (engawa, 縁側: FL+270mm) and between café and event spaces (hisashi, 庇: FL+2150mm), instead of segregating them. By doing so, we intended to introduce a comprehensive and modulated space that stimulates various kinds of creativities.
敷地は十和田湖畔沿いのメインストリートに面した町の中心部にあり、人口減少に伴い多くの空き家が問題となっている。湖畔沿いの景観保全のため、減築をしながら使用できる建物をコンバージョンする枠組みを提案し、そのプロトタイプとして本プロジェクトに取り組んだ。
平日はシェアオフィス及び展示スペース、週末はカフェ及びイベントスペースとして柔軟に多様な使い方が出来る空間が求められた。既存建物の間仕切壁を解体して大きなワンルーム空間とし、カフェ、展示・イベントスペース、オフィスの3つのプログラムがゆるやかにつながり、相乗効果により様々なアクティビティが生まれる空間を目指した。
メインストリートに面して、広々とした半屋外の土間を計画して展示・イベントスペースとして様々なアクティビティを発信出来る場とし、土間を介してオフィス、カフェを計画した。異なるプログラムが交わる部分には、緩衝帯として2つのL型エレメントを挿入した。オフィスとイベントスペースの境界には縁側(FL+270㎜)、カフェとイベントスペースの境界には庇(FL+2150㎜)を設けることで、空間に抑揚を与え多様なアクティビティが誘発される場とした。