︎
Built Environments
Interior Spaces
Kyoto Komamehan
Médecins Sans Frontières
Alliance Française de Delhi
Yamaju
Oddbird
Apartment G-261
K-43 Phase 1
Apartment for 2
J-PAL HQ Office
Goodie Office
Architecture Office
Defence Colony Residence
Apartment E-320
Apartment 9222
Onkar Exim Office
Okhla Kitchen Office
Home of Illusions
Beas
Tahini Restaurant
Follies
Masterplan
News
Publications
Studio
Contact
︎
︎
︎ ︎
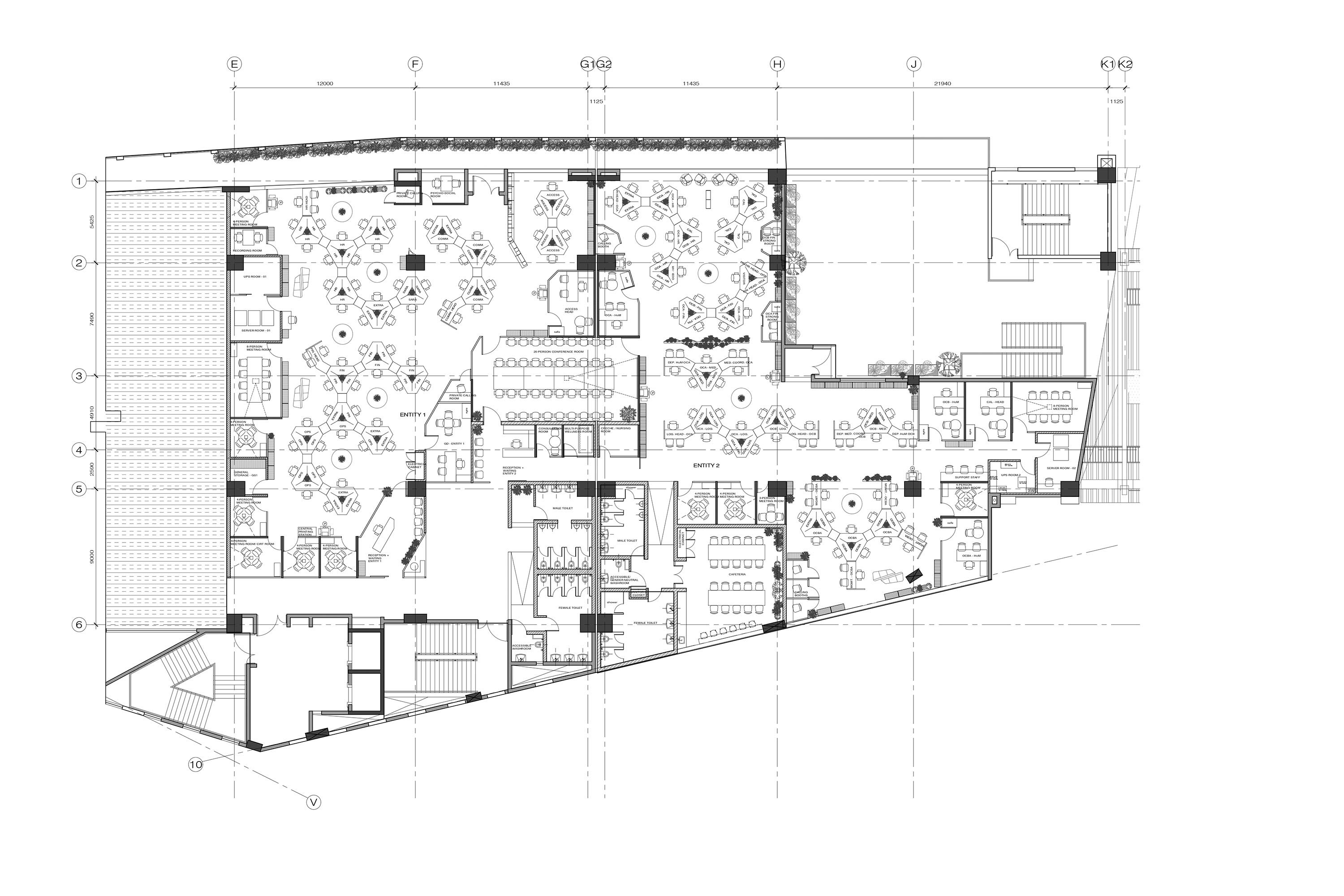
Medicine Sans Frontiers | Doctors Without Borders
Project info
Location: New Delhi, INDIA
Area: 18,000 sq. ft
Project Type : Office
Status: Completed, 2020